Aller à :

  • Aller à la recherche
  • Aller au menu principal
  • Aller au contenu
0
  • Accueil
  • Notre concept
    • L'équipe
    • Madame Monsieur, qui sont-ils ?
    • Les services proposés
  • A LA VENTE
    • Biens classiques
    • Biens à la montagne
  • À LA LOCATION
  • NOS BIENS VENDUS
  • NOS BIENS LOUÉS
  • Estimer
  • Alerte e-mail
  • Livre d'or
  • Contact
0
VotreRecherche
Dans un rayon de
Budget
entre et €
Min €
Max €
  1. Agence immobilière à Ruy
  2. Vente
  3. Herault
  4. Beziers
  5. Appartement
  6. T2
  7. Grand t2 avec terrasse en rez de chaussee
Réf : A273LDV
Appartement
Grand T2 avec terrasse en rez-de-chaussée
Nombre de pièces 2
Nombre de chambres 1
Salle d'eau 1
89 000 €

Grand T2 avec terrasse en rez-de-chaussée Béziers (34500)

Idéal pour vous, parfait pour son emplacement et ses divers atouts...


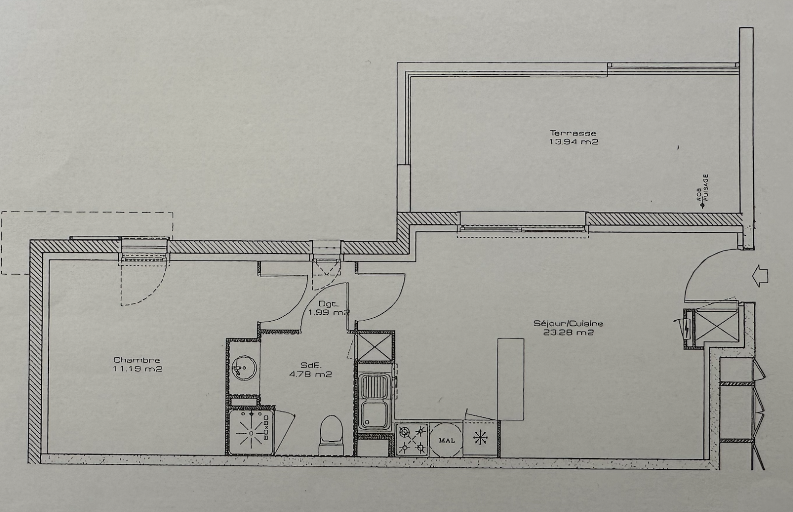
Au rez-de-chaussée, dans une résidence calme et sécurisée de standing, cet appartement de type T2 de 40,90 m ² avec terrasse de 14,30 m² va vous surprendre par sa qualité.


Situé dans la résidence « LES COTEAUX DE LA COURONDELLE » l’appartement a été repeint entièrement.


Il se compose : d’un hall d’entrée, d’une pièce de vie lumineuse de 23,20 m ² avec une cuisine équipée et meublée ouverte donnant sur la terrasse, une salle d’eau avec wc puis une chambre.


Les charges de copropriété sont de 1076€ par an.



Contactez Mme RABATEL au 0611586280


Taxe foncière : 921€

Diagnostics réalisés en septembre 2023

Performance énergétique : D

émission de GES : D

Honoraires à charge vendeurs

RABATEL IMMOBILIER

SAS au capital de 5000€

RCS n°902 938 036 délivré à Vienne

CPI N°38022021000000032 délivrée par la CCI Nord-Isère


  • Général
  • Détails +
  • Copropriété
  • Financier
  • DPE
  • Quartier
Caractérisque Valeurs
Code postal 34500
Surface habitable (m²) 41,24 m²
Surface loi Carrez (m²) 40,90 m²
Nombre de chambre(s) 1
Nombre de pièces 2
Vue TERRASSE
Caractérisque Valeurs
Nb de salle d'eau 1
Cuisine Américaine
Type de cuisine Equipée
Mode de chauffage Gaz de ville
Type de chauffage Radiateur
Format de chauffage Individuel
Interphone OUI
Terrasse OUI
Cave NON
Nombre de parking 2
Exposition Est
Année de construction 2010
Caractérisque Valeurs
Copropriété OUI
Lot n° 12
nombre de lots 37
Quote Part annuelle des charges 1 076 €
plan de sauvegarde NON
statut du syndic pas de procédure en cours
Caractérisque Valeurs
Prix de vente 89 000 €
Les honoraires d'agence seront intégralement à la charge du vendeur  
Taxe foncière annuelle 921 €
DPE GES
  • Commerces et santé
  • Loisirs
  • Ecoles
  • Transports
  • Pratique
Cette offre
vous intéresse

* champs obligatoires

Les informations recueillies sur ce formulaire sont enregistrées dans un fichier informatisé par La Boite Immo agissant comme Sous-traitant du traitement pour la gestion de la clientèle/prospects de l'Agence / du Réseau qui reste Responsable du Traitement de vos Données personnelles. La base légale du traitement repose sur l'intérêt légitime de l'Agence / du Réseau. Elles sont conservées jusqu'à demande de suppression et sont destinées à l'Agence / au Réseau. Conformément à la loi « informatique et libertés », vous disposez des droits d’accès, de rectification, d’effacement, d’opposition, de limitation et de portabilité de vos données. Vous pouvez retirer votre consentement à tout moment en contactant directement l’Agence / Le Réseau. Consultez le site https://cnil.fr/fr pour plus d’informations sur vos droits. Si vous estimez, après avoir contacté l'Agence / le Réseau, que vos droits « Informatique et Libertés » ne sont pas respectés, vous pouvez adresser une réclamation à la CNIL. Nous vous informons de l’existence de la liste d'opposition au démarchage téléphonique « Bloctel », sur laquelle vous pouvez vous inscrire ici : https://www.bloctel.gouv.fr Dans le cadre de la protection des Données personnelles, nous vous invitons à ne pas inscrire de Données sensibles dans le champ de saisie libre.
Ce site est protégé par reCAPTCHA, les Politiques de Confidentialité et les Conditions d'Utilisation de Google s'appliquent.

Partager le bien
Nos outils
Imprimer Imprimer
Calculatrice financière

* Champ obligatoire

Partager l'annonce

* champs obligatoires

Les informations recueillies sur ce formulaire sont enregistrées dans un fichier informatisé par La Boite Immo agissant comme Sous-traitant du traitement pour la gestion de la clientèle/prospects de l'Agence / du Réseau qui reste Responsable du Traitement de vos Données personnelles. La base légale du traitement repose sur l'intérêt légitime de l'Agence / du Réseau. Elles sont conservées jusqu'à demande de suppression et sont destinées à l'Agence / au Réseau. Conformément à la loi « informatique et libertés », vous disposez des droits d’accès, de rectification, d’effacement, d’opposition, de limitation et de portabilité de vos données. Vous pouvez retirer votre consentement à tout moment en contactant directement l’Agence / Le Réseau. Consultez le site https://cnil.fr/fr pour plus d’informations sur vos droits. Si vous estimez, après avoir contacté l'Agence / le Réseau, que vos droits « Informatique et Libertés » ne sont pas respectés, vous pouvez adresser une réclamation à la CNIL. Nous vous informons de l’existence de la liste d'opposition au démarchage téléphonique « Bloctel », sur laquelle vous pouvez vous inscrire ici : https://www.bloctel.gouv.fr Dans le cadre de la protection des Données personnelles, nous vous invitons à ne pas inscrire de Données sensibles dans le champ de saisie libre.
Ce site est protégé par reCAPTCHA, les Politiques de Confidentialité et les Conditions d'Utilisation de Google s'appliquent.

Détail des diagnostics énergétiques
DPE GES

Montant estimé des dépenses annuelles d'énergie de ce logement pour un usage standard est compris entre 706 € et 956 € . 2023 étant l'année de référence des prix de l'énergie utilisés pour établir cette estimation.

Partager avec vos proches

Facebook Facebook
Messenger Messenger
Twitter Twitter
WhatsApp WhatsApp
LinkedIn LinkedIn
Copier le lien Copier le lien
Contacter
l'agence

Remplissez ce formulaire, nous ferons de notre mieux pour vous répondre dans les meilleurs délais.

MADAME MONSIEUR IMMOBILIER
06 11 58 62 80
E-mail contact@madame-monsieur-immobilier.com

275 rue de la Salière 38300 Ruy

160, rue des Auberges 38300 SAINT SAVIN

TRAD_MELTEM_voscoordonnees
TRAD_MELTEM_voredemande
Règlementation

* Champ obligatoire

Les informations recueillies sur ce formulaire sont enregistrées dans un fichier informatisé par La Boite Immo agissant comme Sous-traitant du traitement pour la gestion de la clientèle/prospects de l'Agence / du Réseau qui reste Responsable du Traitement de vos Données personnelles. La base légale du traitement repose sur l'intérêt légitime de l'Agence / du Réseau. Elles sont conservées jusqu'à demande de suppression et sont destinées à l'Agence / au Réseau. Conformément à la loi « informatique et libertés », vous disposez des droits d’accès, de rectification, d’effacement, d’opposition, de limitation et de portabilité de vos données. Vous pouvez retirer votre consentement à tout moment en contactant directement l’Agence / Le Réseau. Consultez le site https://cnil.fr/fr pour plus d’informations sur vos droits. Si vous estimez, après avoir contacté l'Agence / le Réseau, que vos droits « Informatique et Libertés » ne sont pas respectés, vous pouvez adresser une réclamation à la CNIL. Nous vous informons de l’existence de la liste d'opposition au démarchage téléphonique « Bloctel », sur laquelle vous pouvez vous inscrire ici : https://www.bloctel.gouv.fr Dans le cadre de la protection des Données personnelles, nous vous invitons à ne pas inscrire de Données sensibles dans le champ de saisie libre.
Ce site est protégé par reCAPTCHA, les Politiques de Confidentialité et les Conditions d'Utilisation de Google s'appliquent.

Se connecter
Espace propriétaire
Page d'accueil
Adhérents

© 2026 | Tous droits réservés | Traduction powered by Google |

  • Nos honoraires
  • Plan du site
  • Mentions légales
  • Admin
  • Nos liens
  • Politique RGPD
  • LinkedIn

Comme beaucoup, notre site utilise les cookies

On aimerait vous accompagner pendant votre visite. En poursuivant, vous acceptez l'utilisation des cookies par ce site, afin de vous proposer des contenus adaptés et réaliser des statistiques !

Paramétrer

Cookies fonctionnelsCes cookies sont indispensables à la navigation sur le site, pour vous garantir un fonctionnement optimal. Ils ne peuvent donc pas être désactivés.

Statistiques de visitesPour améliorer votre expérience, on a besoin de savoir ce qui vous intéresse !
Les données récoltées sont anonymisées.

?

Google Analytics

En savoir plus