Aller à :

  • Aller à la recherche
  • Aller au menu principal
  • Aller au contenu
0
  • Accueil
  • Notre concept
    • L'équipe
    • Madame Monsieur, qui sont-ils ?
    • Les services proposés
  • A LA VENTE
    • Biens classiques
    • Biens à la montagne
  • À LA LOCATION
  • NOS BIENS VENDUS
  • NOS BIENS LOUÉS
  • Estimer
  • Alerte e-mail
  • Livre d'or
  • Contact
0
VotreRecherche
Dans un rayon de
Budget
entre et €
Min €
Max €
  1. Agence immobilière à Ruy
  2. Location
  3. Isere
  4. Bourgoin jallieu
  5. Appartement
  6. T2
  7. T2 au dernier etage
Réf : GL19
Appartement
T2 au dernier étage
Nombre de pièces 2
Nombre de chambres 1
Nombre de salles de bain 1
Salle d'eau 1
720 € CC*

* Charges comprises

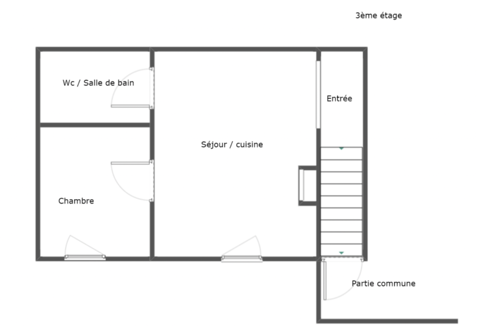
T2 au dernier étage Bourgoin-Jallieu (38300)

Venez découvrir cet appartement T2 MEUBLÉ situé au 3ème et dernier étage d’un immeuble ancien sans ascenseur, offrant une tranquillité absolue et sans vis-à-vis.
Avec une surface habitable de 27,83 m² (34 m² au sol), cet espace optimisé vous accueille dans un cadre agréable et paisible.
L’appartement se compose d’une pièce de vie lumineuse, d’une chambre et d’une salle d’eau moderne avec WC.
Entièrement meublé et équipé, il est prêt à vous recevoir immédiatement.
Le loyer est de 720 € charges comprises, comprenant : entretien de la chaudière, taxe d'ordures ménagères et part locative des frais de copropriété.
Vous bénéficierez d'une petite cour collective, idéale pour profiter de l’extérieur au sein de cette copropriété conviviale.
Contactez Ysaure BERNARD au O6 13 69 24 55
Vous souhaitez louer
Déposer ma candidature
  • Général
  • Détails +
  • Copropriété
  • Financier
  • DPE
  • Quartier
Caractérisque Valeurs
Code postal 38300
Surface habitable (m²) 27,83 m²
Surface loi Boutin (m²) 27,83 m²
Nombre de chambre(s) 1
Nombre de pièces 2
Meublé OUI
Etage 3
Ascenseur NON
Vue Pas de vis à vis
Caractérisque Valeurs
Nb de salle de bains 1
Nb de salle d'eau 1
Cuisine Américaine
Type de cuisine Equipée
Mode de chauffage Gaz de ville, Gaz de ville
Type de chauffage TRAD_TYPE_CHAUFF_CHAUDIERE, TRAD_TYPE_CHAUFF_CHAUDIERE
Format de chauffage Individuel, Individuel
Balcon NON
Terrasse NON
Murs mitoyens 2
Cave NON
Exposition Est
Année de construction 1900
Caractérisque Valeurs
Copropriété OUI
Caractérisque Valeurs
Loyer CC* / mois 720 €
Honoraires TTC charge locataire 306,13 €
Dont état des lieux 83,49 €
Dépôt de garantie TTC Non renseigné
Charges locatives (Previsionnelles mensuelles les avec regularisation annuelle) 40 €
DPE GES
  • Commerces et santé
  • Loisirs
  • Ecoles
  • Transports
  • Pratique
Cette offre
vous intéresse

* champs obligatoires

Les informations recueillies sur ce formulaire sont enregistrées dans un fichier informatisé par La Boite Immo agissant comme Sous-traitant du traitement pour la gestion de la clientèle/prospects de l'Agence / du Réseau qui reste Responsable du Traitement de vos Données personnelles. La base légale du traitement repose sur l'intérêt légitime de l'Agence / du Réseau. Elles sont conservées jusqu'à demande de suppression et sont destinées à l'Agence / au Réseau. Conformément à la loi « informatique et libertés », vous disposez des droits d’accès, de rectification, d’effacement, d’opposition, de limitation et de portabilité de vos données. Vous pouvez retirer votre consentement à tout moment en contactant directement l’Agence / Le Réseau. Consultez le site https://cnil.fr/fr pour plus d’informations sur vos droits. Si vous estimez, après avoir contacté l'Agence / le Réseau, que vos droits « Informatique et Libertés » ne sont pas respectés, vous pouvez adresser une réclamation à la CNIL. Nous vous informons de l’existence de la liste d'opposition au démarchage téléphonique « Bloctel », sur laquelle vous pouvez vous inscrire ici : https://www.bloctel.gouv.fr Dans le cadre de la protection des Données personnelles, nous vous invitons à ne pas inscrire de Données sensibles dans le champ de saisie libre.
Ce site est protégé par reCAPTCHA, les Politiques de Confidentialité et les Conditions d'Utilisation de Google s'appliquent.

Partager le bien
Nos outils
Imprimer Imprimer
Calculatrice financière

* Champ obligatoire

Partager l'annonce

* champs obligatoires

Les informations recueillies sur ce formulaire sont enregistrées dans un fichier informatisé par La Boite Immo agissant comme Sous-traitant du traitement pour la gestion de la clientèle/prospects de l'Agence / du Réseau qui reste Responsable du Traitement de vos Données personnelles. La base légale du traitement repose sur l'intérêt légitime de l'Agence / du Réseau. Elles sont conservées jusqu'à demande de suppression et sont destinées à l'Agence / au Réseau. Conformément à la loi « informatique et libertés », vous disposez des droits d’accès, de rectification, d’effacement, d’opposition, de limitation et de portabilité de vos données. Vous pouvez retirer votre consentement à tout moment en contactant directement l’Agence / Le Réseau. Consultez le site https://cnil.fr/fr pour plus d’informations sur vos droits. Si vous estimez, après avoir contacté l'Agence / le Réseau, que vos droits « Informatique et Libertés » ne sont pas respectés, vous pouvez adresser une réclamation à la CNIL. Nous vous informons de l’existence de la liste d'opposition au démarchage téléphonique « Bloctel », sur laquelle vous pouvez vous inscrire ici : https://www.bloctel.gouv.fr Dans le cadre de la protection des Données personnelles, nous vous invitons à ne pas inscrire de Données sensibles dans le champ de saisie libre.
Ce site est protégé par reCAPTCHA, les Politiques de Confidentialité et les Conditions d'Utilisation de Google s'appliquent.

Détail des diagnostics énergétiques
DPE GES

Montant estimé des dépenses annuelles d'énergie de ce logement pour un usage standard est compris entre 622 € et 53 € . 2021 étant l'année de référence des prix de l'énergie utilisés pour établir cette estimation.

Partager avec vos proches

Facebook Facebook
Messenger Messenger
Twitter Twitter
WhatsApp WhatsApp
LinkedIn LinkedIn
Copier le lien Copier le lien
Autres biens

Ces biens peuvent aussi vous intéresser

Appartement

Appartement rénové au coeur de Saint-Savin

Saint-Savin (38300)
Voir le bien
Appartement

T3 rénové au centre de Saint-Savin

Saint-Savin (38300)
Voir le bien
Contacter
l'agence

Remplissez ce formulaire, nous ferons de notre mieux pour vous répondre dans les meilleurs délais.

MADAME MONSIEUR IMMOBILIER
06 11 58 62 80
E-mail contact@madame-monsieur-immobilier.com

275 rue de la Salière 38300 Ruy

160, rue des Auberges 38300 SAINT SAVIN

TRAD_MELTEM_voscoordonnees
TRAD_MELTEM_voredemande
Règlementation

* Champ obligatoire

Les informations recueillies sur ce formulaire sont enregistrées dans un fichier informatisé par La Boite Immo agissant comme Sous-traitant du traitement pour la gestion de la clientèle/prospects de l'Agence / du Réseau qui reste Responsable du Traitement de vos Données personnelles. La base légale du traitement repose sur l'intérêt légitime de l'Agence / du Réseau. Elles sont conservées jusqu'à demande de suppression et sont destinées à l'Agence / au Réseau. Conformément à la loi « informatique et libertés », vous disposez des droits d’accès, de rectification, d’effacement, d’opposition, de limitation et de portabilité de vos données. Vous pouvez retirer votre consentement à tout moment en contactant directement l’Agence / Le Réseau. Consultez le site https://cnil.fr/fr pour plus d’informations sur vos droits. Si vous estimez, après avoir contacté l'Agence / le Réseau, que vos droits « Informatique et Libertés » ne sont pas respectés, vous pouvez adresser une réclamation à la CNIL. Nous vous informons de l’existence de la liste d'opposition au démarchage téléphonique « Bloctel », sur laquelle vous pouvez vous inscrire ici : https://www.bloctel.gouv.fr Dans le cadre de la protection des Données personnelles, nous vous invitons à ne pas inscrire de Données sensibles dans le champ de saisie libre.
Ce site est protégé par reCAPTCHA, les Politiques de Confidentialité et les Conditions d'Utilisation de Google s'appliquent.

Se connecter
Espace propriétaire
Page d'accueil
Adhérents

© 2026 | Tous droits réservés | Traduction powered by Google |

  • Nos honoraires
  • Plan du site
  • Mentions légales
  • Admin
  • Nos liens
  • Politique RGPD
  • LinkedIn

Comme beaucoup, notre site utilise les cookies

On aimerait vous accompagner pendant votre visite. En poursuivant, vous acceptez l'utilisation des cookies par ce site, afin de vous proposer des contenus adaptés et réaliser des statistiques !

Paramétrer

Cookies fonctionnelsCes cookies sont indispensables à la navigation sur le site, pour vous garantir un fonctionnement optimal. Ils ne peuvent donc pas être désactivés.

Statistiques de visitesPour améliorer votre expérience, on a besoin de savoir ce qui vous intéresse !
Les données récoltées sont anonymisées.

?

Google Analytics

En savoir plus